-22% на водонагреватели из нержавеющей стали объемом 500 литров
Промышленный электрический водонагреватель 750 литров предназначен для горячего водоснабжения жилых и промышленных объектов, больниц, учебных заведений и гостиничных комплексов. Нагрев воды в водонагревателях может производиться, как от встроенных блок - ТЭНов, так и от теплообменника косвенного нагрева.
Корпус емкости водонагревателя 750 литров и нагревательные элементы изготовлены из нержавеющей стали и рассчитаны на длительный срок эксплуатации. При применении водонагревателя для нагрева воды для технологических нужд производства корпус может быть изготовлен из углеродистой стали. Снаружи емкость изолирована высококачественной теплоизоляцией, сверху защищена полимерной пленкой.
Водонагреватель вертикальный 750 л. легко обеспечивает пиковые расходы системы горячего водоснабжения и может применяться совместно с другими источниками горячего водоснабжения в качестве основного или резервного. Теплообменник косвенного нагрева бойлера может быть выполнен, как в виде внешнего пластинчатого теплообменника, так и в виде встроенного змеевика из нержавеющей стали, теплоноситель в который подается от системы отопления здания.
Гарантия производителя 12 месяцев
Декларация соответствия Таможенного союза
| ХАРАКТЕРИСТИКИ | ПОКАЗАТЕЛИ | ЕДИНИЦЫ ИЗМЕРЕНИЯ |
|---|---|---|
| Артикул | АВП-НВ-0750 | |
| Ёмкость (±5%) | 750 | литр |
| Материал бака | AISI 304 / S235JR (ст.3) | |
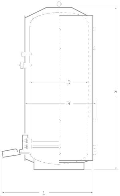
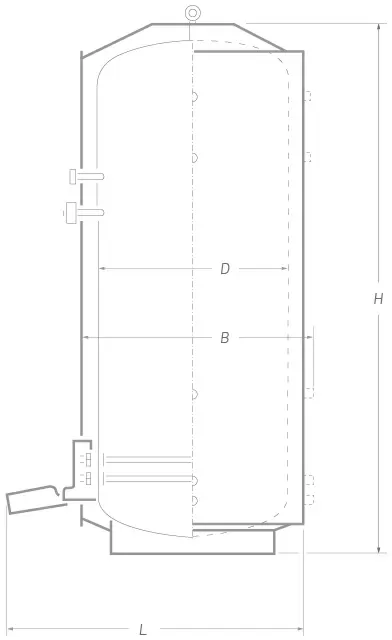
| Диаметр бака D | 800 | мм |
| Внешний диаметр B | 1115 | мм |
| Высота H | 1850 | мм |
| Масса водонагревателя | 160 | кг |
| Объем в упаковке | 1,7 | м³ |
| Толщина теплоизоляции | 100 | мм |
| Допустимое давление | 0,6 | МПа |
| Рекомендуемая электрическая мощность встроенных ТЭНов (опция) | 20 | кВт |
| Время нагрева при рекомендуемой мощности от +5 до +65ºС ΔT=60ºC | 2,6 | час |
| Максимальная электрическая мощность встроенных ТЭНов | 75 | кВт |
| Пределы настройки термостата (±5) | от +30 до + 85 | ºС |
| Номинальное напряжение для блок ТЭНов (±10%) | 230 (400) | В |
| Рекомендуемая мощность внешнего/внутреннего теплообменника (опция) | 45 | кВт |
| Патрубки холодной / горячей воды. вн. резьба | 1 | дюймы |
| Сливной патрубок вн. резьба | 1 | дюймы |
| Патрубок под предохранительный клапан вн. резьба | 1 | дюймы |
| Гайка под гильзу терморегулятора / термоманометра вн. резьба | 1/2 | дюймы |
| Патрубок рециркуляции вн. резьба (опция) | 1 | дюймы |
| Количество гаек под блок-ТЭН G 1½" стандартная комплектация | 4 | шт. |
Промышленный вертикальный водонагреватель объёмом 750 литров предназначен для систем горячего водоснабжения жилых и промышленных объектов, медицинских учреждений, учебных заведений и гостиничных комплексов. Оборудование рассчитано на интенсивную эксплуатацию и обеспечивает стабильный нагрев воды как от встроенных блок-ТЭНов, так и от теплообменника косвенного нагрева.
Компания «Невский» с 1993 года занимается разработкой и производством промышленного нагревательного оборудования. Водонагреватели проектируются с учётом требований к надёжности, безопасности и длительному сроку службы на объектах с повышенной нагрузкой на системы ГВС.
Накопительный вертикальный водонагреватель 750 литров может использоваться в качестве основного или резервного источника горячей воды и уверенно покрывает пиковые расходы системы. Ключевые технические параметры:
Корпус и нагревательные элементы выполнены из коррозионно-стойких материалов и рассчитаны на длительную эксплуатацию. При использовании в технологических процессах возможно исполнение бака из углеродистой стали. Ёмкость оснащена эффективной теплоизоляцией, снижающей теплопотери и энергозатраты, а внешняя поверхность защищена полимерным покрытием.
Конструкция водонагревателей «Невский» ориентирована на безопасную и удобную эксплуатацию в промышленных условиях. Оборудование оснащается следующими решениями:
Водонагреватель может работать совместно с другими источниками тепла, обеспечивая гибкость построения системы ГВС. Специалисты компании «Невский» помогут подобрать оптимальную конфигурацию оборудования и проконсультируют по вопросам эксплуатации и обслуживания.
Звоните по телефону