-22% на водонагреватели из нержавеющей стали объемом 500 литров
Промышленный электрический водонагреватель 1000 литров предназначен для горячего водоснабжения жилых и промышленных объектов, больниц, учебных заведений и гостиничных комплексов. Нагрев воды в водонагревателях может производиться, как от встроенных блок - ТЭНов, так и от теплообменника косвенного нагрева.
Корпус емкости водонагревателя 1000 литров и нагревательные элементы изготовлены из нержавеющей стали и рассчитаны на длительный срок эксплуатации. При применении водонагревателя для нагрева воды для технологических нужд производства корпус может быть изготовлен из углеродистой стали. Снаружи емкость изолирована высококачественной теплоизоляцией, сверху защищена полимерной пленкой.
Водонагреватель вертикальный 1000 л. легко обеспечивает пиковые расходы системы горячего водоснабжения и может применяться совместно с другими источниками горячего водоснабжения в качестве основного или резервного. Теплообменник косвенного нагрева бойлера может быть выполнен, как в виде внешнего пластинчатого теплообменника, так и в виде встроенного змеевика из нержавеющей стали, теплоноситель в который подается от системы отопления здания.
Гарантия производителя 12 месяцев
Декларация соответствия Таможенного союза
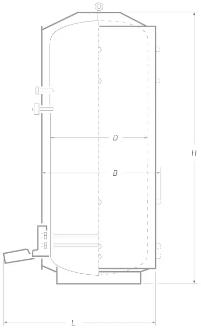
| ХАРАКТЕРИСТИКИ | ПОКАЗАТЕЛИ | ЕДИНИЦЫ ИЗМЕРЕНИЯ |
|---|---|---|
| Артикул | АВП-НВ-1000 | |
| Ёмкость (±5%) | 1000 | литр |
| Материал бака | AISI 304 / S235JR (ст.3) | |
| Диаметр бака D | 800 | мм |
| Внешний диаметр B | 1115 | мм |
| Высота H | 2300 | мм |
| Масса водонагревателя | 200 | кг |
| Объем в упаковке | 2,1 | м³ |
| Толщина теплоизоляции | 100 | мм |
| Допустимое давление | 0,6 | МПа |
| Рекомендуемая электрическая мощность встроенных ТЭНов (опция) | 25 | кВт |
| Время нагрева при рекомендуемой мощности от +5 до +65ºС ΔT=60ºC | 2,7 | час |
| Максимальная электрическая мощность встроенных ТЭНов | 75 | кВт |
| Пределы настройки термостата (±5) | от +30 до + 85 | ºС |
| Номинальное напряжение для блок ТЭНов (±10%) | 230 (400) | В |
| Рекомендуемая мощность внешнего/внутреннего теплообменника (опция) | 60 | кВт |
| Патрубки холодной / горячей воды. вн. резьба | 1 | дюймы |
| Сливной патрубок вн. резьба | 1 | дюймы |
| Патрубок под предохранительный клапан вн. резьба | 1 | дюймы |
| Гайка под гильзу терморегулятора / термоманометра вн. резьба | 1/2 | дюймы |
| Патрубок рециркуляции вн. резьба (опция) | 1 | дюймы |
| Количество гаек под блок-ТЭН G 1½" стандартная комплектация | 4 | шт. |
Промышленный вертикальный водонагреватель 1000 литров предназначен для систем горячего водоснабжения жилых и промышленных объектов, медицинских учреждений, учебных заведений и гостиничных комплексов. Оборудование рассчитано на работу при высоких нагрузках и обеспечивает стабильный нагрев воды как от встроенных блок-ТЭНов, так и от теплообменника косвенного нагрева.
Водонагреватели «Невский» выпускаются с учётом требований к длительной эксплуатации и адаптированы для применения в качестве основного или резервного источника горячей воды на объектах различного назначения.
Накопительный вертикальный водонагреватель с объемом 1000 литров уверенно покрывает пиковые расходы системы ГВС и может работать совместно с другими источниками тепла. Основные технические параметры оборудования:
Корпус ёмкости и нагревательные элементы изготавливаются из коррозионно-стойких материалов и рассчитаны на длительный срок службы. Для технологических процессов возможно исполнение бака из углеродистой стали. Эффективная теплоизоляция снижает теплопотери, а защитное полимерное покрытие предохраняет корпус от внешних воздействий.
Конструкция оборудования разработана с учётом требований безопасности, удобства обслуживания и надёжной работы в промышленных условиях. Водонагреватель оснащается следующими решениями:
Водонагреватель может использоваться в составе комбинированных систем ГВС и совместно с другими источниками тепла. Специалисты компании «Невский» помогут подобрать оптимальную конфигурацию оборудования и проконсультируют по вопросам эксплуатации и обслуживания.
Звоните по телефону